
卡萨米卡承诺,您填写的手机只作为预约短信接收,资料完全保密。

夏天在很多人心中,就是“度假”的代名词,绵延的沙滩、温柔的海浪,一众旅行人诗与远方的向往.....

欲想在旅行中体验城市花园与海岸线美景,那里别致的独栋度假别墅,不失为最佳落脚点。



沿着蜿蜒的钢构旋转楼梯下来,就是推翻以往印象的负一层空间,这里采光充足,视野开阔,一眼望去,蓝天白云,碧海美景尽收眼底,丝毫不觉压抑、封闭。


负一层空间联通户外,是整栋别墅的综合活动区域,包括露天影院、多功能区、微办公区、品酒区等等,可能年轻人的生活方式就是希望打破规则,让空间能有更多复合话语权。



负一层的空间设计来源于冲浪板,吊灯装饰、桌椅都是冲浪板的元素,船板用作天花板,整个空间充满了海边沙滩的自由气息。金属条形格子酒柜,配合古铜金色的空间视觉,轻奢氛围隐隐流淌而出。



一层空间



一层客厅用深咖色做底,沙发用皮革,富有艺术感的铜像装置,稳重的岩板桌面茶几,都是主人讲究品质的体现,奢而不华,简约而不简单。



对于居家生活要求精致且务实,在空间内追求生活的美学与艺术同时也希望让家这个空间更具有温度,在收纳空间,采光通透,材质选择,都有着合理的规划与判断。




充分利用空间线条感,摒弃了繁杂的修饰设计,以越简约越舒适的概念,让一层空间变得静美,全屋精致的摆件装置,在现代意式生活空间中独树一帜。


二层空间



联通阳台的空间被设定为益智娱乐空间,以平衡质感打造互动性,木质花纹护墙板在灯光摇曳下,更显得气氛稳重低调,轻奢的设计风格也更能体现。

阳台浴缸应该是很多人的夏日海滨梦想,也在这里替你先行实现。
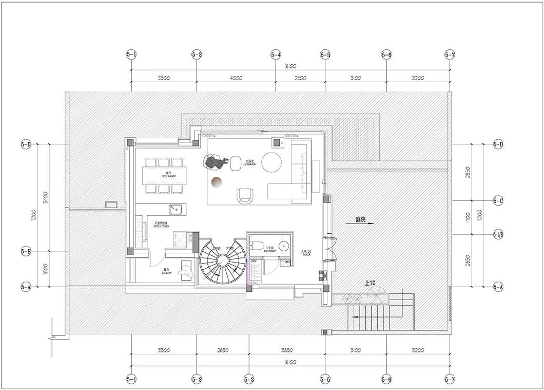
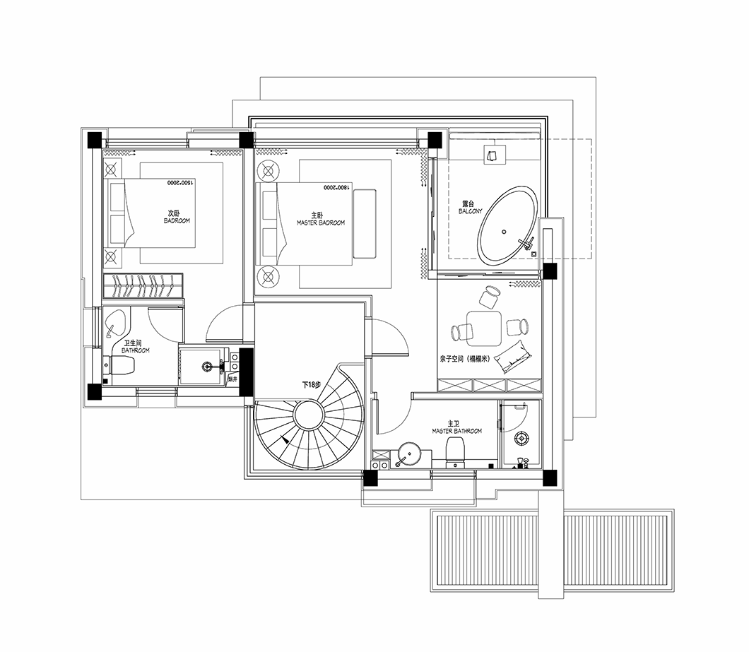
平面图

△负一层平面图

△二层平面图

沙滩海岸、香槟水果、辽阔海天,都为这炎炎夏日增添清凉之意,住在这样一栋别墅里,你可以俯绵延数里的海岸线,饱览壮丽的海景。

2021-05-21 05:17:15 1146浏览量
夏天在很多人心中,就是“度假”的代名词,绵延的沙滩、温柔的海浪,一众旅行人诗与远方的向往.....

欲想在旅行中体验城市花园与海岸线美景,那里别致的独栋度假别墅,不失为最佳落脚点。



沿着蜿蜒的钢构旋转楼梯下来,就是推翻以往印象的负一层空间,这里采光充足,视野开阔,一眼望去,蓝天白云,碧海美景尽收眼底,丝毫不觉压抑、封闭。


负一层空间联通户外,是整栋别墅的综合活动区域,包括露天影院、多功能区、微办公区、品酒区等等,可能年轻人的生活方式就是希望打破规则,让空间能有更多复合话语权。



负一层的空间设计来源于冲浪板,吊灯装饰、桌椅都是冲浪板的元素,船板用作天花板,整个空间充满了海边沙滩的自由气息。金属条形格子酒柜,配合古铜金色的空间视觉,轻奢氛围隐隐流淌而出。



一层空间



一层客厅用深咖色做底,沙发用皮革,富有艺术感的铜像装置,稳重的岩板桌面茶几,都是主人讲究品质的体现,奢而不华,简约而不简单。



对于居家生活要求精致且务实,在空间内追求生活的美学与艺术同时也希望让家这个空间更具有温度,在收纳空间,采光通透,材质选择,都有着合理的规划与判断。




充分利用空间线条感,摒弃了繁杂的修饰设计,以越简约越舒适的概念,让一层空间变得静美,全屋精致的摆件装置,在现代意式生活空间中独树一帜。


二层空间



联通阳台的空间被设定为益智娱乐空间,以平衡质感打造互动性,木质花纹护墙板在灯光摇曳下,更显得气氛稳重低调,轻奢的设计风格也更能体现。

阳台浴缸应该是很多人的夏日海滨梦想,也在这里替你先行实现。
平面图

△负一层平面图

△二层平面图

沙滩海岸、香槟水果、辽阔海天,都为这炎炎夏日增添清凉之意,住在这样一栋别墅里,你可以俯绵延数里的海岸线,饱览壮丽的海景。


